Regio Ortenau

Löwenstr.  60

77966 Kappel-Grafenhausen

 07822-437350

 info@regio-ortenau.de

 https://www.regio-ortenau.de


 

#RegioFokus: Ein neuer Trend? So groß wie nötig, nicht so klein wie möglich. WeberHaus erweitert Minihaus-Konzept OPTION

  • 18 Okt 2024
  • Regio Ortenau

NEU: zweigeschossiges Haus mit Anbaumodul4

Rheinau-Linx, 18. Oktober 2024. apg. Quelle: WeberHaus. Aufgrund der steigenden Marktnachfrage erweitert der Fertighaushersteller WeberHaus die Baureihe OPTION um einen weiteren Entwurf mit Anbaumodul. Die Reihe umfasst nun insgesamt vier Varianten: zwei Bungalows und zwei zweigeschossige Häuser, darunter eines ganz neu mit praktischem Anbaumodul, wodurch sich die Wohnfläche um etwa 18 m² auf rund 90 m² vergrößert. Alle OPTION-Entwürfe richten sich an Menschen, deren Wohnqualität nicht durch übertriebene Raumfülle definiert wird, sondern vielmehr durch intelligente Planungskonzepte, die Funktionalität und Ästhetik vereinen. Ob nach dem Auszug der Kinder aus dem großen Einfamilienhaus oder als individuelles Zuhause für Singles und Paare – die platzsparenden Weber HausMini-Häuser bieten in unterschiedlichen Lebenssituationen die ideale Lösung. Wolfgang Weber, Geschäftsführer Vertrieb und Marketing bei WeberHaus, erläutert: „Das große Interesse unserer Kunden bestätigt, dass wir mit OPTION auf dem richtigen Weg sind. "Deshalb haben wir uns entschlossen, die Minihaus-Reihe um ein weiteres Modul zu ergänzen.“

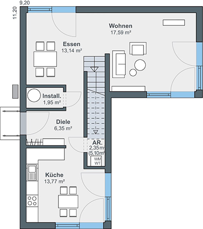
So groß wie nötig, nicht so klein wie möglich: Der neue Hausentwurf besticht durch klare Linien und ein raffiniertes Design, das sich harmonisch in die Umgebung einfügt. Das Anbaumodul, das eine flexible Alternative zur Erweiterung des Raumangebots bietet, kann beispielsweise neben dem Wohnbereich platziert werden und schafft somit einen zusätzlichen Raum, der vielseitig genutzt werden kann. Ob als Hobbyzimmer oder zur Vergrößerung des Wohn-/ Essbereichs – die Möglichkeiten sind unbegrenzt. Die edle Holz Fassade strahlt Ruhe und Wärme aus, während die großen Fenster lichtdurchflutete Räume im Inneren schaffen. Der Hauseingang ist zentral platziert und führt in eine Diele, die den Kochbereich vom Wohnbereich trennt. Die einladende Küche bietet Platz für eine Frühstücksecke, während im hinteren Bereich des Erdgeschosses ein separater Essbereich für Gäste zur Verfügung steht. Im Obergeschoss eröffnet die elegante Holztreppe in Faltwerkoptik, die einen eleganten Blickfang bildet, den Zugang zu einem etwa 15 m² großen Schlafzimmer, das durch eine multifunktionale Schiebetür abgetrennt wird. Weber HausDas Badezimmer in der Mitte ist ebenfalls mit einer platzsparenden Schiebetür ausgestattet, während das offen gestaltete Home Office am Ende der Empore den Anforderungen eines modernen und flexiblen Arbeiten entspricht.

Nachhaltigkeit und Energieeffizienz im Fokus Besonderen Wert legt WeberHaus auf Nachhaltigkeit und Energieeffizienz. Ökologische Materialien kommen zum Einsatz, um ein gesünderes Raumklima zu fördern und gleichzeitig die Umwelt zu schonen. Die integrierte Multi-Anlage für Heizen, Kühlen und Warmwasser garantiert hohen Wohnkomfort bei niedrigem Energieverbrauch. Mit diesen modernen Technologien wird nicht nur der ökologische Fußabdruck reduziert, sondern auch der Geldbeutel geschont. Die energieeffiziente und nachhaltige Gebäudehülle ÖvoNatur sorgt für hervorragende Wärmedämmung und reduziert den Energiebedarf zusätzlich. Sechs Photovoltaik-Module sorgen dafür, dass Sonnenenergie effektiv genutzt wird. Bereits im Standard verfügen die neuen Entwürfe auch optisch über zahlreiche Ausstattungs-Highlights, die den Wohnkomfort erhöhen. Zusammenfassend bietet die Baureihe OPTION ein modernes, nachhaltiges und komfortables Wohnen für Menschen, die ihren Lebensstil neu definieren möchten. Die Kombination aus durchdachtem Design, hochwertigen Materialien und innovativen Technologien schafft ein Zuhause, das den Ansprüchen einer fortschrittlichen Lebensweise gerecht wird. Mit der neuen zweigeschossigen Variante mit Anbaumodul positioniert sich die Baureihe OPTION als flexible und individuelle Wohnlösung für zukunftsorientierte Bauherren.

Weitere Infos unter: Baureihe OPTION